• 44.3651
  • 50.8938
  • 58.5146

Emlakçıdan Marmaris Merkezinde Satılık Sıfır İkiz Villa

VillaSatılık

Emlakçıdan Marmaris Merkezinde Satılık Sıfır İkiz Villa

VillaSatılık
  • Emlak Fiyatı
    $ 775.000
  • Emlak Tarihi
    17-06-2025
  • Emlak No
    1289
  • Emlak Bölgesi
  • Emlak Durumu
    Satılık
  • Emlak Türü
    Villa
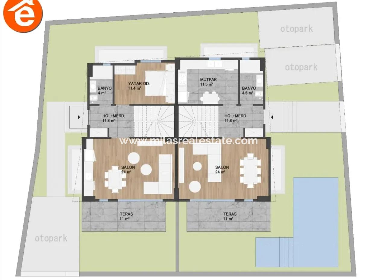
  • Toplam m²
    180m²
  • Kullanılabilir m²
    120m²
  • Oda Sayısı
    3+1
  • Banyo Sayısı
    2
  • Bina Yaşı
    Belirtilmemiş
  • Kat Sayısı
    2
  • Bulunduğu Kat
    Bahçe Katı
  • Balkon
    Mevcut
  • Isıtma Tipi
    Klima
  • Mobilya Durumu
    Sadece Mutfak
  • Yapının Durumu
    Sıfır
  • Kullanım Durumu
    Boş
  • Krediye Uygun
    Evet
  • Takasa Uygun
    Hayır

Açıklama

Marmaris merkezinde en iyi lokasyonda birinci sınıf malzeme ile inşaa edilmiş ikiz villamız satılıktır.3 oda 1 salon kapalı mutfak 120m2 net kullanım alanı sunan bu şirin ev sizin gibi cici müşterisini bekliyor.25 yıllık tecrübemizle hizmetinizdeyiz.

Özellikler

  • İç Özellikler
    Ahşap Doğrama
    Akıllı Ev
    Alarm - Hırsız
    Alarm - Yangın
    Alaturka Tuvalet
    Amerikan Mutfak
    Ankastre Fırın
    Asansör
    Balkon
    Barbekü
    Beyaz Eşya
    Boyalı
    Bulaşık Makinesi
    Buzdolabı
    Çamaşır Kurutma Makinesi
    Çamaşır Makinesi
    Çamaşır Odası
    Çelik Kapı
    Duşakabin
    Duvar Kağıdı
    Ebeveyn Banyosu
    Fırın
    Giyinme Odası
    Gömme Dolap
    Görüntülü Diafon
    Hilton Banyo
    Isıcam
    Jakuzi
    Kartonpiyer
    Kiler
    Klima
    Küvet
    Laminat Zemin
    Marley
    Mobilya
    Mutfak - Ankastre
    Mutfak - Laminat
    Mutfak Doğalgazı
    Panjur
    Parke Zemin
    Pvc Doğrama
    Seramik Zemin
    Set Üstü Ocak
    Spot Aydınlatma
    Şofben
    Şömine
    Teras
    Termosifon
    Vestiyer
    Yüz Tanıma Ve Parmak İzi
  • Dış Özellikler
    Asansör
    Buhar Odası
    Güvenlik
    Hamam
    Hidrofor
    Isı Yalıtım
    Jeneratör
    Kapalı Garaj
    Kapıcı
    Kreş
    Otopark
    Oyun Parkı
    Sauna
    Ses Yalıtımı
    Siding
    Spor Alanı
    Su Deposu
    Tenis Kortu
    Yangın Merdiveni
    Yüzme Havuzu - Açık
    Yüzme Havuzu - Kapalı
  • Cephe
    Batı
    Doğu
    Güney
    Güneybatı
    Güneydoğu
    Kuzey
    Kuzeybatı
    Kuzeydoğu
  • Engelliye Uygun
    Araç Park Yeri
    Asansör
    Banyo
    Geniş Koridor
    Giriş - Rampa
    Merdiven
    Mutfak
    Oda Kapısı
    Park
    Priz - Elektrik Anahtarı
    Tutamak - Korkuluk
    Tuvalet
    Yüzme Havuzu
  • Altyapı
    Adsl
    Fiber İnternet
    Intercom
    Kablo Tv
    Telefon Hattı
    Uydu
    Wi-Fi
  • Muhit
    Alışveriş Merkezi
    Belediye
    Cami
    Cemevi
    Denize Sıfır
    Eczane
    Eğlence Merkezi
    Fuar
    Hastane
    Havra
    İlkokul - Ortaokul
    İtfaiye
    Kilise
    Lise
    Market
    Park
    Polis Merkezi
    Sağlık Ocağı
    Semt Pazarı
    Spor Salonu
    Şehir Merkezi
    Üniversite
  • Ulaşım
    Anayol
    Avrasya Tüneli
    Boğaz Köprüleri
    Cadde
    Deniz Otobüsü
    Dolmuş
    E-5
    Havaalanı
    İskele
    Marmaray
    Metro
    Metrobüs
    Minibüs
    Otobüs Durağı
    Sahil
    Teleferik
    Tramvay
    Tren İstasyonu
  • Manzara
    Boğaz
    Cadde
    Dağ
    Deniz
    Doğa
    Göl
    Havuz
    Nehir
    Park
    Şehir
    Vadi
    Yeşil Alan
  • Konut Tipi
    Ara Kat
    Ara Kat Dubleksi
    Bahçe Dubleksi
    Bahçe Katı
    Bahçeli
    Çatı Dubleksi
    Dubleks
    En Üst Kat
    Giriş Kat
    İkiz Ev
    Kat Dubleksi
    Müstakil Girişli
    Teras Katı
    Ters Dubleks
    Tripleks

Harita

Gayrimenkul toplam 18.811 kez görüntülenmiştir.
qrcode

Satılık Villa

Emlakçıdan Marmaris Merkezinde Satılık Sıfır İkiz Villa
Emlak No: 1289

Emlakçıdan Marmaris Merkezinde Satılık Sıfır İkiz Villa

qrcode
  • Emlak Fiyatı
    $ 775.000
  • Emlak Tarihi
    17-06-2025
  • Emlak No
    1289
  • Emlak Bölgesi
  • Emlak Durumu
    Satılık
  • Emlak Türü
    Villa
  • Toplam m²
    180m²
  • Kullanılabilir m²
    120m²
  • Oda Sayısı
    3+1
  • Banyo Sayısı
    2
  • Bina Yaşı
    Belirtilmemiş
  • Kat Sayısı
    2
  • Bulunduğu Kat
    Bahçe Katı
  • Balkon
    Mevcut
  • Isıtma Tipi
    Klima
  • Mobilya Durumu
    Sadece Mutfak
  • Yapının Durumu
    Sıfır
  • Kullanım Durumu
    Boş
  • Krediye Uygun
    Evet
  • Takasa Uygun
    Hayır

Açıklama

Marmaris merkezinde en iyi lokasyonda birinci sınıf malzeme ile inşaa edilmiş ikiz villamız satılıktır.3 oda 1 salon kapalı mutfak 120m2 net kullanım alanı sunan bu şirin ev sizin gibi cici müşterisini bekliyor.25 yıllık tecrübemizle hizmetinizdeyiz.